Bakon İnşaat Kurumsal Tamamlanan Projeler Devam Eden Projeler Farkımız İletişim Facebook Twitter Instagram Youtube

Siz de vakit kaybetmeden

bu ayrıcalıklı projede yerinizi alın...

384
Arsa
Alanı
240
İnşaat
Alanı
144
Yeşil
Alan
16
Toplam
Daire
Öngörülen bitiş tarihi
30.12.2019
Satışa Açık Daire Sayısı

Rakamlarla
Projemiz

384
Arsa
Alanı
240
İnşaat
Alanı
144
Yeşil
Alan
16
Toplam
Daire

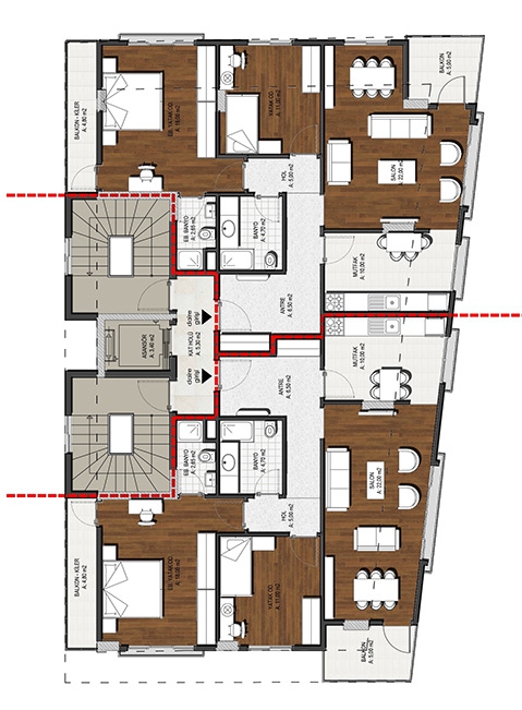
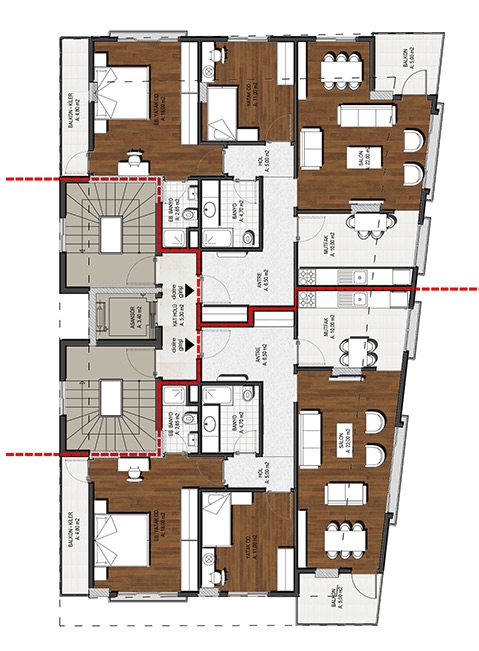
Kat Planları

2+1
120 m2 BRÜT
Antre 6.50 m²
Mutfak 10.0 m²
Salon 22.0 m²
Hol 5.00 m²
Banyo 4,70 m²
Yatak Odası 11.00 m²
Eb. Yatak Odası 18.00 m²
Eb. Banyo 2.65 m²
Balkon1 5.00 m²
Balkon2 (kiler) 4.80 m²
2+1
120 m2 BRÜT
Antre 6.50m ²
Mutfak 10.00 m²
Salon 22.00 m²
Hol 5.00 m²
Banyo 4.70 m²
Yatak Odası 11.00 m²
Eb. Yatak Odası 18.00 m²
Eb. Banyo 2.65 m²
Balkon-1 5.00 m²
Balkon-2(kiler) 4.80 m²

Proje Görselleri

Bakon İnşaat halen Samsun'da büyük çapta konut projelerini yürütmektedir.


Genel Özellikler

Ellialtılar'da Lüks 2+1 Daireler.

SALON: Zemin Çamsan vb. marka laminant parke olacak, tavan asma tavan olacak, beyaz tavan boyası ile boyanacak, duvarlar alçı sıva üzeri saten boya ile boyanacaktır.

ODALAR: Zemin Çamsan vb. marka laminant parke olacak, duvarlar ve tavan alçı sıva üzeri saten boya olacak, kartonpiyer yapılıp, bütün odalarda yeteri kadar topraklı priz, tv prizi ve bir adet telefon hattı bulunacaktır.

MUTFAK: Tabanlar 1.sınıf seramik (vitra vb.) dolaplar; (Mopa vb. ahşap, membran veya lake kaplamalı 1.sınıf hazır mutfak)  mutfak tezgahı akrilik tezgah olacak, mutfak armatürleri (Eca vb.) takılacak, yeteri kadar priz ve anahtar olacak, bulaşık makinesi tesisatı yapılacak, ocak ve şofben için doğal gaz tesisatı kurulacaktır.

ANTRE: Tabanlar 1.sınıf 60x60 taban seramiği( Vitra, Çanakkale vb.) döşenecek, duvarlar alçı sıva üzeri plastik boya, asma tavanlı, dekoratif olacaktır. Apartman girişi ile daire arasında ve güvenlik ile iletişimi sağlamak için sesli ve görüntülü sistem kurulacaktır.

TUVALET: Tavana kadar 1.sınıf duvar seramiği(Vitra, Çanakkale vb.), tabanlarda 1. sınıf taban seramiği olacak, alaturka tuvalet taşı kullanılacak. Yarım ayaklı lavabo ve ayna takılacaktır.

BANYO: Tavana kadar 1.sınıf seramik (Vitra, Çanakkale vb.) kullanılacak, tabanda 1.sınıf yer seramiği döşenecek, havlupan takılacak, akrilik banyo küveti olacak, temperli camlı duşa kabin, gömme rezervuarlı asma klozet ve bataryaları takılı (Eca vb.), lavabo dolaplı ve aynası takılı olacaktır.

BALKON: Tüm balkon tabanları 1.sınıf taban seramiği (Vitra vb.) ile kaplanacak, her balkona yıkama musluğu ile elektrik prizi takılacak. Ön balkona Kalorifer alt yapı tesisatı döşenecektir. Balkon korkulukları mimari projeye uygun olarak alüminyum profilden yapılacaktır.

DOĞRAMA: Doğramalar kalın seriden 1.sınıf PVC olacak (Egepen, Winsa, Pimapen vb.) Camlar (4+12+4) ısı camlı olacak.

KAPILAR: Daire iç kapıları mobilya kapı olacak. Daire dış kapıları 14 noktadan kilitlenen ve iç kapılarla uyumlu mobilya kaplamalı çift kilitli çelik kapı olacaktır.

ISITMA: Müstakil kombili sistem ısıtma yapılacak. Kalorifer petekleri teknik şartnameye uygun kaloride ısı verecek dilimde, Demirdöküm, Eca, vb. markalardan kullanılacaktır.

ASANSÖR: Çift hızlı, 6 kişilik kabin, otomatik emniyetli krom kapılı, dijital kumandalı (Kone vb.) kapıcı dairesine ve kapalı otoparka irtibatlı olacaktır. TSE ve İSO 9001 standartlarına uygun malzeme kullanılacaktır.

ELEKTRİK: Tesisatta kullanılan kabloların tamamı, otomatik sigortalar, kaçak akım röleleri vb. malzeme TSE ve İSO 9001 belgeli olacak. Priz ve anahtarlar (Günsan v.b.) her odaya yeterli adette konulacaktır.

ISI, SES, SU ve NEM İZOLASYONU

Temel izolasyonu: Bohçalamalı membran kaplamalı olacak ve perde duvarları yanlardan poliüretan köpükle kaplanarak gerekli yalıtım sağlanacaktır.

Çatı izolasyonu: .Membran üzeri şap üzeri poliüretan köpük kaplanarak gerekli yalıtım sağlanacaktır.  Üzerine çatı yapılıp OSB ve Ruberoit kaplanarak kiremitle örtülecektir. Çatı saçaklı olup olukları 2.mm galvanizli sacdan özel imal edilecektir

Dış cephe ses ve ısı izolasyonu: Dış cephe 3 gözlü bims blok ile örülüp üzeri kaba sıva, üzeri mantolama (XPS/EPS) ile kaplanıp ince sıvası yapıldıktan sonra akrilik dış cephe boyası ile mimari projeye uygun olarak boyanacaktır

Kat aralarında ses ve ısı izolasyonu: Katın tamamına şap altında bohçalama şeklinde özel şilte ses yalıtım malzemesi kullanılacak, ayrıca salonda ve ebeveyn banyosunda iki daire arasındaki ortak duvarların arasında özel taş yünü yalıtım malzemesi kullanılarak ses geçirimsizliği sağlanacaktır. Banyo ve tuvalet tavanlarında asma tavan arasına cam yünü ile ses izolasyonu sağlanacaktır.

BİNA GİRİŞİ: Bina girişleri mimari projeye uygun yükseklikte bir girişle kalın seri alüminyum kutu profilden çift kanatlı ve posta kutulu olarak inşa edilecektir. Girişte lobi oluşturulacak, zemin ve yan duvarlar mimariye uygun kaplama malzemesiyle dekore edilecektir.

OTOPARK: Mimari projeye istinaden açık otoparklar yapılacaktır.

KAPICI DAİRESİ: Blok altında bir daire planlanmış olup oturuma hazır vaziyette apartman yönetimine teslim edilecektir.

***TÜM İÇERİK BİLGİ AMAÇLI VE TÜM GÖRSELLER TEMSİLİ OLUP BAKON İNŞAAT GEREK GÖRDÜĞÜNDE HABER VERMEKSİZİN İÇERİKTE VE GÖRSELLERDE DEĞİŞİKLİK YAPABİLİR.

İletişim Bilgileri

Adres: Kılıçdede Mah. Ellialtılar Sok. No: 46 İlkadım / Samsun

Telefon: 0362 236 36 34

Mesaj Gönder

Ulaşım Bilgileri